Thanks for your patience during our recent outage at scalar.usc.edu. While Scalar content is loading normally now, saving is still slow, and Scalar's 'additional metadata' features have been disabled, which may interfere with features like timelines and maps that depend on metadata. This also means that saving a page or media item will remove its additional metadata. If this occurs, you can use the 'All versions' link at the bottom of the page to restore the earlier version. We are continuing to troubleshoot, and will provide further updates as needed. Note that this only affects Scalar projects at scalar.usc.edu, and not those hosted elsewhere.
ARTH3810 2019F Class Projects (Publication)Main MenuThe Tent Room at Rideau HallKyle Kreutner, Page 1 of 6The Webley Shacks: Unconventional Furniture Use in the Context of Ceaseless SurveillanceJose BawaganImperial Theater By Munawar MobinKeagan F - CSTM Sound HistoryIntroductionThe Mayfair TheatreSimran S.An Investigation of Hospital Interiors Effect on Patients144 Loretta Avenue North, Aidan MacNaullAidan MacNaull 144 Loretta Avenue NorthWest Block - Canada's New House of Commonsby Devon RudykRideau Street Chapel: The Effects of Relocation on the Experience of an Interiorby Ty FollisThe Church of St. Andrew's OttawaDavid Bastien-AllardMaking the Past Present: Union Station Restoration – A Political Facelift?by Vivian AstroffThe National Arts Centre: Reflecting on its Past and PresentSaint Paul University - A Shift in ValuesReem SiageFilm in Ottawa: The Mayfair theatreby Giovanna Maria SangCGM -An Investigation of Hospital Interiors Effect on PatientsThe Chateau LaurierBy Jessica El-GhazalReusable Space: The Senate of Canada Buildingby Syenne HolderNational Gallery of Canada - Seeing the Colonnade Through a Semiological Lens by Ricky TongRickyTHE OTTAWA STATIONEhidiamen Iyamabo, HomePageAVRC81ff8dad33b7fe77eee9a543209e890531c75438
Delegation of the Ismali Imamat
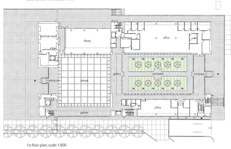
12019-12-03T09:45:21-08:00AVRC81ff8dad33b7fe77eee9a543209e890531c75438358162plain9400122023-08-29T14:34:38-07:00Maegen Sargentf8c37f900ecb77afe0a6ed383bd0b77ea6c1266bCompleted in 2008, the Delegation of the Ismaili Immat was commissioned by His Highness the Aga Khan, the 49th Iman of the Shia Ismaili Muslins and now serves as his official residence in Ottawa as well as the headquarters for the Aga Khan Foundation Canada (AKFC) ("Visit the Delegation of the Ismaili Imamat", 2019). This remarkable building found at 199 Sussex Drive, designed by Fumihiko Maki and his firm Maki and Associates, has been the recipient of several awards such as the Governor General’s Medal in Architecture in 2012 and two awards from the Ontario Association of Architects in 2010 ("Visit the Delegation of the Ismaili Imamat", 2019). While the entire structure is an architectural masterpiece, a place of particular fascination is the interior courtyard, the Char Bagh.
It is important to note that the building and the AKFC are secular but the design for the structure is influenced by the Aga Khan's heritage and features many Islamic patterns ("The Delegation of the Ismaili Imamat : Maki and Associates in Association with Moriyama & Teshima Architects." 2017). The Char Bagh is an example of this influence and demonstrates many concepts found in Islamic tradition ("Visit the Delegation of the Ismaili Imamat", 2019). The Char Bagh is found in Islamic architectural spaces all over the world, one of the most notable being the Gardens of the Taj Mahal in India. The Char Bagh is meant to be a symbolic or abstract representation of Paradise, a paradise garden. Islamic beliefs describe a space of four intersecting rivers; one of water, one of milk, one of honey and one of wine (“Taj Mahal Gardens.” N.d.). The entire design is to be symmetrical and centered around the number '4', the holiest number in Islamic faith.
Not only is the Char Bagh at the Delegation influenced by its patron, but also its architect. His Highness thought it important to not only include islamic architecture in the design but also pay tribute to Maki's country of origin, Japan. In the design for the interior courtyard, Maki successfully married Islamic and Japanese traditions together while also being considerate of the buildings location in the Canada's Capitol.
Contents of this path:
12019-12-03T09:45:21-08:00AVRC81ff8dad33b7fe77eee9a543209e890531c75438The Char Bagh at the Delegation1plain2019-12-03T09:45:21-08:00AVRC81ff8dad33b7fe77eee9a543209e890531c75438
12019-12-03T09:45:20-08:00AVRC81ff8dad33b7fe77eee9a543209e890531c75438Char Baghs Around the World1plain2019-12-03T09:45:20-08:00AVRC81ff8dad33b7fe77eee9a543209e890531c75438
12019-12-03T09:45:20-08:00AVRC81ff8dad33b7fe77eee9a543209e890531c75438Diplomatic Buildings in Ottawa1plain2019-12-03T09:45:20-08:00AVRC81ff8dad33b7fe77eee9a543209e890531c75438